궁금해요 알려주세요~ > 토지 매매(수방 subang지역)

본문 바로가기
  • FAQ
  • 현재접속자 (1030)
  • 최신글

LOGIN
1.서로의 매너와 예의를 지켜주시고 중복된 질문은 하지 말아주세요!!
2.질문하시기전에 꼭!! 하단에서 게시물을 검색하신 후 질문하기 바랍니다.
3.답변을 쉽게 할 수 있게 질문을 명확하고 쉽게 올려주시기 바랍니다

부동산 | 토지 매매(수방 subang지역)

페이지 정보

작성자 인도용 쪽지보내기 메일보내기 자기소개 아이디로 검색 전체게시물 작성일 조회24,109회 댓글0건
  • 목록
게시글 링크복사 : http://www.indoweb.org/492120

본문



 

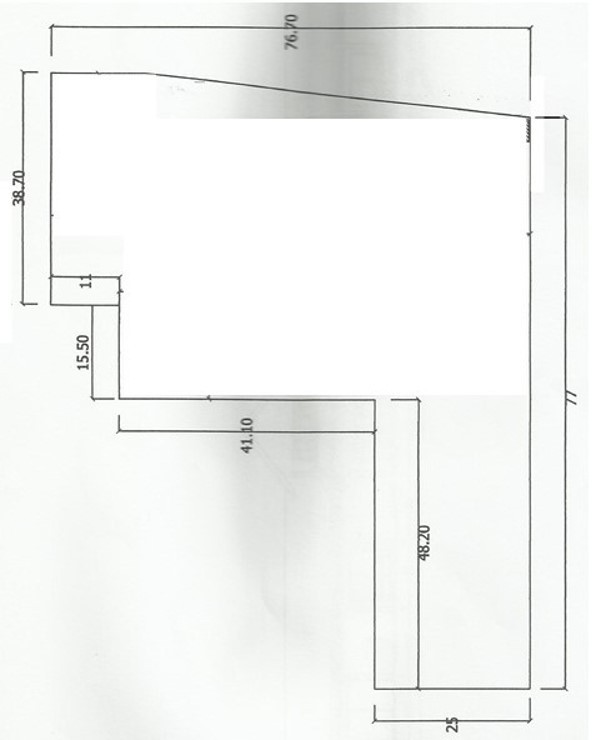
수방 지역(SUBANG) 땅 판매합니다.
1. 지역 : 수방(Subang) 톨에서 15~20분 거리
2. 주소 : KP MEKARSARI RT RW GAMBARSARI PAGADEN SUBANG
3. 크기 : 4,334m2
4. 소유 : 회사 소유
5. 예상금액 : 750,000rp/m2 (가격 협상 가능)
6. 기타 : 소유권(회사), 건축(IMB) 등 문제 없는 상태
필요시 직접 협의 가능함.(082122217606)
이메일 : indodaum1@gmail.com

 

좋아요 0
  • 목록
궁금해요 알려주세요~ 목록
  • Total 1,038건 27 페이지
궁금해요 알려주세요~ 목록
번호 제목 글쓴이 날짜 조회
310 비즈니스 현지인명의 회사설립 댓글2 희술이 쪽지보내기 메일보내기 자기소개 아이디로 검색 전체게시물 22-07-08 28269
309 세법/법률 세무관리 업체 연락처 알고 싶습니다. 댓글2 이아도도 쪽지보내기 메일보내기 자기소개 아이디로 검색 전체게시물 22-07-07 24782
308 통신/전자 한국에서 중고 pc 부품 수입 댓글1 옆집호랑이 쪽지보내기 메일보내기 자기소개 아이디로 검색 전체게시물 22-07-06 17777
307 여행 좋아요1 발리 현지에 여행사 말보로키드 쪽지보내기 메일보내기 자기소개 아이디로 검색 전체게시물 22-07-04 16286
306 기타 궁금해요~알려주세요 댓글1 하위염 쪽지보내기 메일보내기 자기소개 아이디로 검색 전체게시물 22-07-04 23871
305 비즈니스 인니웹에 올라오는 구인 공고는 댓글2 syukuran 쪽지보내기 메일보내기 자기소개 아이디로 검색 전체게시물 22-07-03 18476
304 통신/전자 인도네시아 인터넷 환경에 관한 질문입니다. 댓글2 Franzliszt 쪽지보내기 메일보내기 자기소개 아이디로 검색 전체게시물 22-07-03 14073
303 통관 달러한도액 댓글4 무시로 쪽지보내기 메일보내기 자기소개 아이디로 검색 전체게시물 22-07-01 30564
302 통관 인도네시아->한국 휴대폰 핸드캐리 댓글2 육재 쪽지보내기 메일보내기 자기소개 아이디로 검색 전체게시물 22-07-01 16847
301 세법/법률 한국에서 인도네시아 현지인 통해서 인도네시아에 물건 파는 법? 댓글2 AlwaysClassy 쪽지보내기 메일보내기 자기소개 아이디로 검색 전체게시물 22-06-28 22076
열람중 부동산 토지 매매(수방 subang지역) 첨부파일 인도용 쪽지보내기 메일보내기 자기소개 아이디로 검색 전체게시물 22-06-28 24110
299 비즈니스 자동차 카매트 OEM 봉제공장 찾습니다. 댓글1 생명연장 쪽지보내기 메일보내기 자기소개 아이디로 검색 전체게시물 22-06-28 21193
298 기타 불법환치기업체 전수조사-박영규 불법 외환 거래법 위반 관련 댓글4 fennylingsca… 쪽지보내기 메일보내기 자기소개 아이디로 검색 전체게시물 22-06-27 22679
297 비즈니스 팜유 업체 댓글6 JTLee 쪽지보내기 메일보내기 자기소개 아이디로 검색 전체게시물 22-06-27 30514
296 건강 좋아요2 모기를 퇴치하는 방법과 물렸을 때 대처법 댓글1 김성환 쪽지보내기 메일보내기 자기소개 아이디로 검색 전체게시물 22-06-23 25930
295 여행 인니에서 한국오는 outbound 여행사 소개 부탁합니다 angelapa 쪽지보내기 메일보내기 자기소개 아이디로 검색 전체게시물 22-06-16 25055
294 생활/문화 롯데애버뉴 누들킹에 대해서 잘 아시는 분 계신가요? 댓글1 Geffenize 쪽지보내기 메일보내기 자기소개 아이디로 검색 전체게시물 22-06-15 21029
293 숙박 하숙집 구하는글 블루빈 쪽지보내기 메일보내기 자기소개 아이디로 검색 전체게시물 22-06-13 19139
292 비자 조금 상황이 복잡할 수 있으나 최대한 풀어쓰니 꼭 답변부탁드립니다. 댓글3 limsh11 쪽지보내기 메일보내기 자기소개 아이디로 검색 전체게시물 22-06-01 27430
291 생활/문화 인니에서 결혼, 정착을 위한 준비를 어떻게 해야할까요? 댓글6 미스터제이 쪽지보내기 메일보내기 자기소개 아이디로 검색 전체게시물 22-06-01 31218
290 기타 좋아요1 친환경 태양열 차단 페인트 첨부파일 생수 쪽지보내기 메일보내기 자기소개 아이디로 검색 전체게시물 22-05-31 22510
289 통관 NIB 최신 버전 saranghaza 쪽지보내기 메일보내기 자기소개 아이디로 검색 전체게시물 22-05-30 18064
288 비즈니스 좋아요1 안녕하세요 인도네시아 ERP 시스템 구축하는 업체를 찾습니다 댓글2 구름따라 쪽지보내기 메일보내기 자기소개 아이디로 검색 전체게시물 22-05-30 25925
287 비즈니스 좋아요1 현지에서 제일많이 쓰는ERP 프로그램이 먼가요?> 댓글3 CJkOrang 쪽지보내기 메일보내기 자기소개 아이디로 검색 전체게시물 22-05-23 36669
286 기타 봉제업체 리스트 받아보고 싶습니다 댓글2 미치건네 쪽지보내기 메일보내기 자기소개 아이디로 검색 전체게시물 22-05-19 32650
285 기타 혹시 한글->영어,중국어 통역가능하신분 계신가요? 댓글2 박구글 쪽지보내기 메일보내기 자기소개 아이디로 검색 전체게시물 22-05-17 29312
284 여행 한국으로 가는 outbound 여행사 있으신가요? 댓글4 발리한국센터 쪽지보내기 메일보내기 홈페이지 자기소개 아이디로 검색 전체게시물 22-05-17 31989
283 여행 예방접종과 증명서 나그네2017 쪽지보내기 메일보내기 자기소개 아이디로 검색 전체게시물 22-05-17 17646
게시물 검색

인도웹은 광고매체이며 광고 당사자가 아닙니다. 인도웹은 공공성 훼손내용을 제외하고 광고정보에 대한 책임을 지지않습니다.
Copyright ⓒ 2006.7.4 - 2025 Powered By IndoWeb.Org. All rights reserved. Email: ad@indoweb.org