판매 | 수방 토지 매매 관련
페이지 정보
작성자 인도용 쪽지보내기 메일보내기 자기소개 아이디로 검색 전체게시물 (180.♡.166.32) 작성21-08-05 11:15 수정21-08-05 16:18 조회2,524회 댓글0건
게시글 링크복사 : http://www.indoweb.org/487106
본문
| 분류 | 기타 | |
| 희망가격 | Rp. 750,000 | |
| 거래 희망 지역 | 수방 지역 | |
| 연락처 | 이메일 : indodaum1@gmail.com 연락처 : 082122217606 | |
| 설명 | ||
|
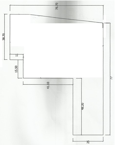
수방 지역(SUBANG) 땅 판매합니다. 1. 지역 : 수방(Subang) 톨에서 15~20분 거리 2. 주소 : KP MEKARSARI RT RW GAMBARSARI PAGADEN SUBANG 3. 크기 : 4,334m2 4. 소유 : 회사 소유 5. 예상금액 : 750,000rp/m2 (가격 협상 가능) 6. 기타 : 소유권(회사), 건축(IMB) 등 문제 없는 상태 필요시 직접 협의 가능함. 이메일 : indodaum1@gmail.com |
||
| 키워드 | 수방 땅 판매,tanah subang,jual tanah,땅 판매 | |
추천 0


















